Conteneur de chantier 6M
Le conteneur de chantier 6 mètres est un module préfabriqué robuste et isolé, adapté à divers usages professionnels. Il constitue une solution idéale pour aménager rapidement des espaces de travail, de vie ou de stockage sur chantier ou en milieu industriel.
Dimensions
- Extérieures :
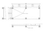
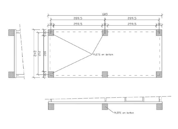
- Longueur : 609 cm
- Largeur : 242 cm
- Hauteur : 241 cm
- Surface : 14,7 m²
- Intérieures :
- Longueur : 593 cm
- Largeur : 226 cm
- Hauteur : 220 cm
- Surface : 13,4 m²
Ossature
- Matière : Acier galvanisé et laqué
- Couleur : Gris clair RAL 9002 (autres couleurs possibles en option)
- Épaisseur : 1,5 mm
- Soubassement : hauteur 95 mm, épaisseur 1,5 mm
- Toiture : hauteur 150 mm, épaisseur 1,5 mm
- Manutention : 4 prises en toiture pour crochets de levage
Parois et toiture
- Matière : Panneaux sandwich
- Isolation : Mousse rigide de polyuréthane
- Parois : épaisseur 40 mm, couleur gris clair RAL 9002
- Toiture : épaisseur 30 mm, même couleur
- Couverture : Tôle d’acier galvanisé avec ondes grecques
- Évacuations des eaux pluviales : sur les petits côtés
Plancher
- Structure : Panneaux de bois aggloméré hydrofuge
- Épaisseur : 18 mm
- Revêtement : Lino PVC (passage intensif ou autres finitions disponibles en option)
Menuiseries
- Matière : Aluminium laqué blanc RAL 9010
- Porte : 1 porte semi-vitrée (104 x 220 cm), passage 90 cm, barreaudée, simple vitrage clair
- Fenêtre : 1 fenêtre coulissante (104 x 110 cm), barreaudée, simple vitrage clair
Installation électrique
- Tension : 220 V
- Éclairage : 2 néons LED 18 W
- Interrupteur : 1 interrupteur à côté de la porte
- Prises : 2 prises de courant
- Chauffage : 1 convecteur électrique 1500 W
- Tableau : 1 tableau électrique avec inter-différentiel et disjoncteurs (puissance maximale 6 kW)
- Raccordement : 1 boîte extérieure de raccordement
- Emplacements standards modifiables sur plan (prises sous le tableau, convecteur sous la fenêtre)
Options disponibles
- Couleurs personnalisables (ossature, panneaux, menuiseries)
- Hauteur sous plafond portée à 2,40 m (porte conservée à 2,20 m)
- Soubassement renforcé (160 mm) avec passage de fourches (entraxe 90 cm)
- Soubassement sur skids (2 poutrelles IPE 160 mm)
- Coin WC avec lave-mains, vasistas, cloisons, éclairage (eau chaude en option)
- Coin douche avec eau chaude
- 4 descentes d’eaux pluviales jusqu’au sol
- Portes supplémentaires : semi-vitrée, pleine ou vitrée
- Fenêtres supplémentaires : standard, baie vitrée, snack, guichet avec hygiaphone
- Dalles LED à la place des néons
- Volets roulants alu ou PVC (barreaudés possibles), couleurs au choix
- Plancher en bois-ciment 16 mm pour milieux humides ou pose directe
- Sol PVC passage intensif, imitation parquet ou aluminium antidérapant
- Parois spécifiques : lisses, alimentaires, coupe-feu, laine de roche
- Retrait des barreaux : gratuit
- Prises supplémentaires, prises RJ45
- Climatisation :
- Réversible 2300 W
- Window 12000 BTU (froid seul)
- Split réversible 3400 W (pignons uniquement)
- Mobile réversible avec kit fenêtre
- Kitchenette : évier 1 bac, eau chaude, plaques, frigo
7,000.00€ Le prix initial était : 7,000.00€.4,999.00€Le prix actuel est : 4,999.00€.
Référence : CTFM98334
Commentaires des clients
Online Sports Nutrition and Natural Dietetics.
Chances are there wasn't collaboration, communication, and checkpoints, there wasn't a process agreed upon or specified with the granularity required. It's content strategy gone awry right from the start. Forswearing the use of Lorem Ipsum wouldn't have helped, won't help now. It's like saying you're a bad designer, use less bold text, don't use italics in every other paragraph. True enough, but that's not all that it takes to get things back on track.
The villagers are out there with a vengeance to get that Frankenstein
You made all the required mock ups for commissioned layout, got all the approvals, built a tested code base or had them built, you decided on a content management system, got a license for it or adapted:
- The toppings you may chose for that TV dinner pizza slice when you forgot to shop for foods, the paint you may slap on your face to impress the new boss is your business.
- But what about your daily bread? Design comps, layouts, wireframes—will your clients accept that you go about things the facile way?
- Authorities in our business will tell in no uncertain terms that Lorem Ipsum is that huge, huge no no to forswear forever.
- Not so fast, I'd say, there are some redeeming factors in favor of greeking text, as its use is merely the symptom of a worse problem to take into consideration.
- Websites in professional use templating systems.
- Commercial publishing platforms and content management systems ensure that you can show different text, different data using the same template.
- When it's about controlling hundreds of articles, product pages for web shops, or user profiles in social networks, all of them potentially with different sizes, formats, rules for differing elements things can break, designs agreed upon can have unintended consequences and look much different than expected.
This is quite a problem to solve, but just doing without greeking text won't fix it. Using test items of real content and data in designs will help, but there's no guarantee that every oddity will be found and corrected. Do you want to be sure? Then a prototype or beta site with real content published from the real CMS is needed—but you’re not going that far until you go through an initial design cycle.




